A vendre – Appartement de 2 pièces au coeur du village, avec échappée sur le lac
Arzier
Description
Référence:
A-25-031
Pièces:
2
Nb de salles de bain: 1
Nb de chambres:
1
Surfaces:
63 m2
Prix parking:
CHF 30'000.-
Parking:
En sus
Parking obligatoire:
Obligatoire
Disponibilité:
18.01.2026
Description
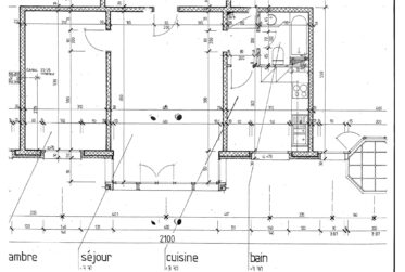
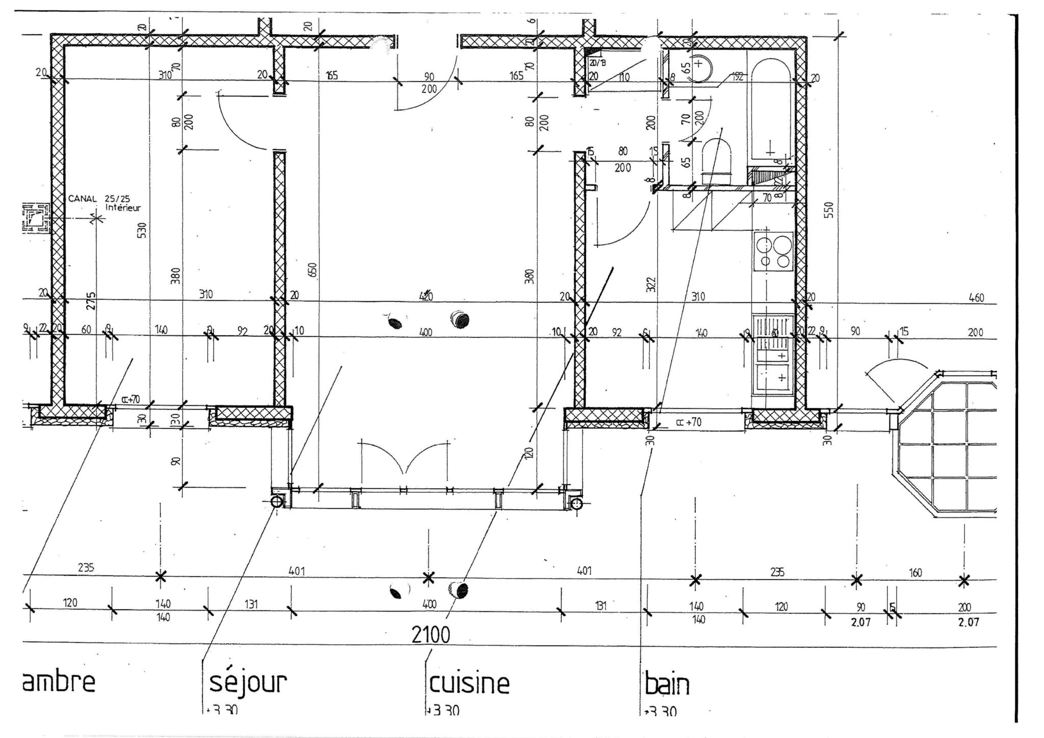
Situé dans un environnement calme en plein centre du village d’Arzier, cet appartement de 2 pièces se trouve au 1er étage d’un petit immeuble.
Il bénéficie d’un emplacement privilégié, à proximité immédiate des transports publics, des commerces et des services essentiels.
D’une surface d’environ 63 m², il se compose comme suit:
- Hall d’entrée avec armoire intégrée
- Généreux séjour
- Grande chambre à coucher
- Cuisine fermée aménagée
- Salle de bain / WC
L’appartement bénéficie également d’une grande cave.
Il est vendu avec une place de parking intérieure située dans le garage souterrain de l’immeuble, au prix de CHF 30’000.- (en sus).
Ce bien, qui nécessite quelques travaux de rafraîchissement, constitue notamment une belle opportunité d’acquisition pour un investisseur.
N’hésitez pas à nous contacter pour de plus amples informations ou pour organiser une visite.
Nous serons ravis de vous renseigner !
Adresse
1273 Arzier
Sur la carte
CHF 485'000.-
Agent immobilier
Valérie Morand
E-mail valerie.morand@valaur.ch
Téléphone +41 79 774 24 01
Contactez le courtier